Το Ιδαίον αποτελεί ένα εμβληματικό ξενοδοχείο, από τα πρώτα ξενοδοχεία του Ρεθύμνου λόγω της θέσης του στον πολεοδομικό ιστό της Ενετικής Πόλης. Με θέα στο λιμάνι και τη θάλασσα.
Κατασκευάστηκε στις αρχές της δεκαετίας του '70 . Είναι μια οικογενειακή επιχείρηση της οικογένειας "Μπιρλιράκη", με δημιουργούς τα αδέλφια Νίκο και Μανώλη, τα δύσκολα χρόνια πριν την οργανωμένη τουριστική κίνηση. Πενήντα χρόνια μετά, αποφασίστηκε ο συστηματικός Αρχιτεκτονικός εκσυγχρονισμός σε όλα τα επίπεδα και η ριζική Στατική του ενίσχυση.
Σημαντική για το κτίριο, λόγω μεγέθους & θέσης, είναι η συστηματική πολυετής συνεργασία με την τοπική Αρχαιολογία και το Κεντρικό Αρχαιολογικό Συμβούλιο (ΚΑΣ).
Μετά την πενταετή αποπεράτωση των εργασιών, παραδόθηκε το 2014 σε λειτουργία.
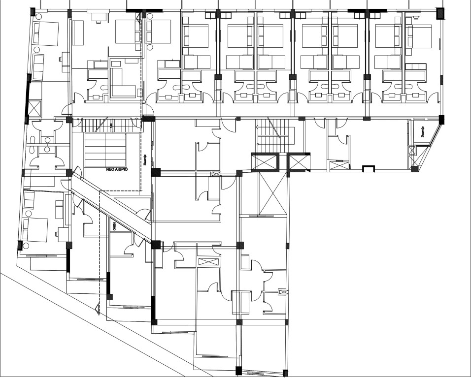
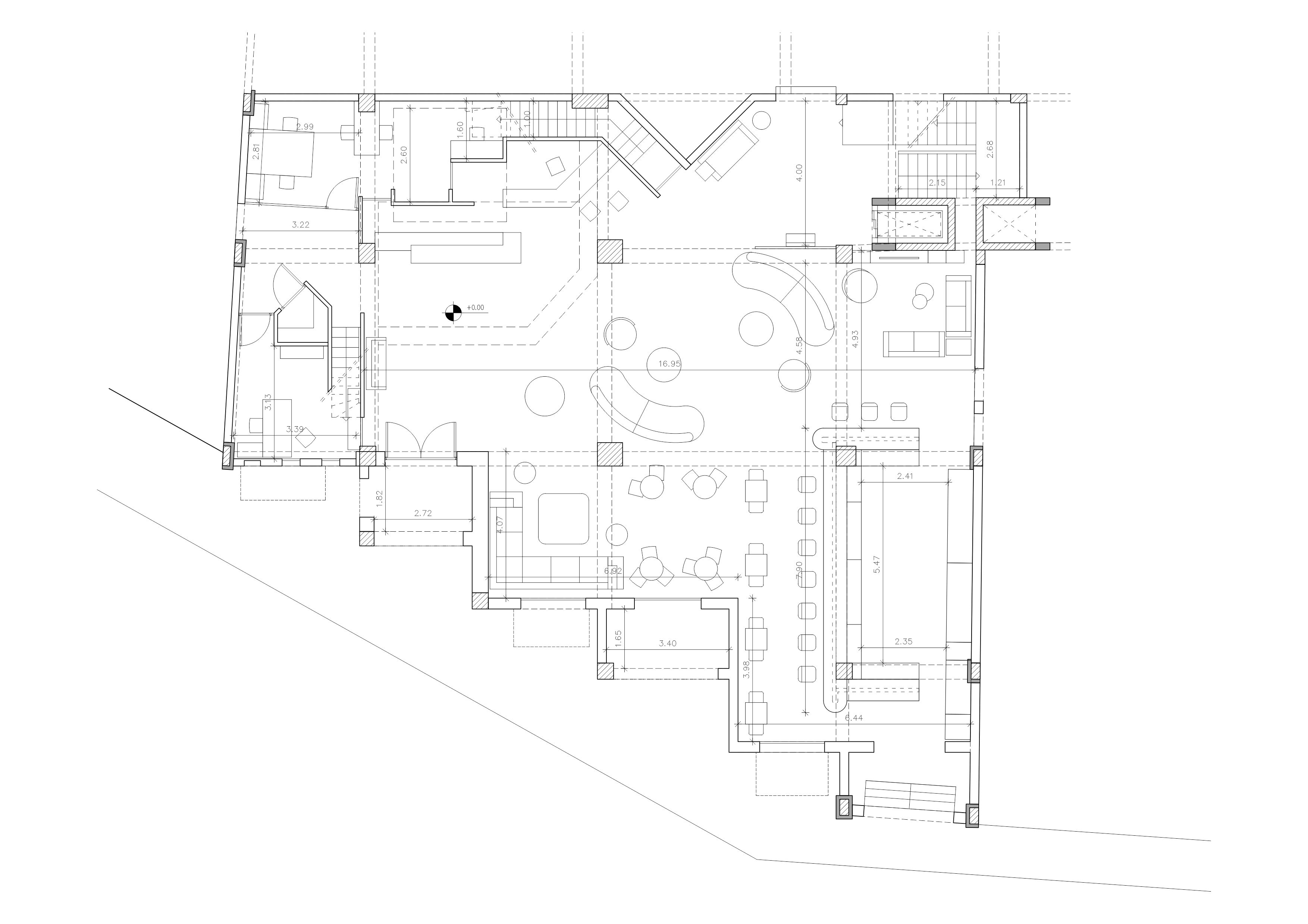
Είναι ένα αστικό ξενοδοχείο, το οποίο αποτελείται από πέντε ορόφους, ισόγειο με κοινόχρηστους χώρους υποδοχής και εστίασης και τέσσερις ορόφους με δωμάτια.
Το 2018 εγκρίθηκε η μελέτη ριζικής Αρχιτεκτονικής ανακαίνισης και εκσυγχρονισμού και Στατικής και Αντισεισμικής Θωράκισης.

Συντελεστές & Προμηθευτές του Έργου
ΑΡΧΙΤΕΚΤΟΝΙΚΗ ΜΕΛΕΤΗ: "ΑΡΧΙΤΕΚΤΟΝΙΚΗ" ΑΝΔΡΕΑΔΑΚΗΣ ΜΠΑΚΑ & ΣΥΝΕΡΓΑΤΕΣ
ΥΠΕΥΘΥΝΟΣ ΜΕΛΕΤΗΣ & ΕΠΙΒΛΕΨΗΣ: ΑΝΔΡΕΑΔΑΚΗΣ ΕΥΑΓΓΕΛΟΣ
ΣΤΑΤΙΚΗ ΜΕΛΕΤΗ: CACTUS ΤΣΟΥΠΑΚΗΣ ΓΙΑΝΝΗΣ
ΗΛΕΚΤΡΟΜΗΧΑΝΟΛΟΓΙΚΑ: ΔΑΜΒΑΚΕΡΑΚΗΣ ΛΕΥΤΕΡΗΣ
INTERIOR DESIGNER: ΤΣΙΟΥΡΗ ΠΟΛΗ
ΕΡΓΟΛΑΒΟΣ ΣΤΑΤΙΚΗΣ ΕΝΙΣΧΥΣΗΣ: ΚΡΥΟΒΡΥΣΑΝΑΚΗΣ ΟΡΕΣΤΗΣ
ΕΡΓΟΛΑΒΟΣ ΣΚΥΡΟΔΕΤΗΣ: ΜΑΝΟΥΣΟΣ ΣΑΡΙΔΑΚΗΣ
ΘΕΡΜΟΠΡΟΣΟΨΗ - ΓΥΨΟΣΑΝΙΔΕΣ: ΣΗΦΑΚΑΚΗΣ ΣΤΕΛΙΟΣ, ΠΑΠΑΔΑΚΗΣ ΜΑΝΩΛΗΣ
ΕΠΕΝΔΥΣΕΙΣ:
ΠΛΑΚΑΚΙΑ: ΣΩΠΑΣΟΥΔΑΚΗΣ ΑΝΤΩΝΗΣ, ΖΑΦΥΡΙΑΔΗΣ ΓΙΩΡΓΟΣ, ΜΕΡΓΕΜΟΓΛΟΥ Κ
ΜΑΡΜΑΡΩΝ: ΣΩΠΑΣΟΥΔΑΚΗΣ ΑΝΤΩΝΗΣ
ΚΟΥΦΩΜΑΤΑ ΞΥΛΙΝΑ ΕΞΩΤΕΡΙΚΑ: ΒΟΓΙΑΤΖΗΣ FORMA
ΠΡΟΣΘΗΚΕΣ - ΑΝΑΚΑΙΝΙΣΗ: ΣΗΦΗΣ ΜΠΑΡΜΠΟΥΝΗΣ
ΜΑΡΜΑΡΑ ΠΡΟΜΗΘΕΙΑ ΚΑΦΕ ΤΡΑΒΕΡΤΙΝΟ: ΜΑΜΑΛΑΚΗΣ ΣΤΕΛΙΟΣ
ΜΑΡΜΑΡΑ ΛΕΥΚΟ ΒΕΡΟΙΑΣ, ΣΚΛΗΡΟΣ ΠΟΡΟΛΙΘΟΣ: ΑΦΟΙ ΦΟΥΝΤΙΔΑΚΗΣ ΑΕ
ΕΠΙΠΛΑ - ΞΥΛΕΠΕΝΔΥΣΕΙΣ: ΚΑΛΟΤΕΡΑΚΗΣ ΑΕ
ΕΠΙΠΛΑ ΔΩΜΑΤΙΩΝ: ΠΑΤΕΡΑΚΗΣ ΜΑΡΙΝΟΣ, ΚΟΥΡΜΟΥΛΗΣ ΔΗΜΗΤΡΗΣ
ΠΕΡΓΚΟΛΑ - ΞΥΛΙΝΑ ΚΙΓΚΛΙΔΩΜΑΤΑ: ΚΟΥΡΜΟΥΛΗΣ ΔΗΜΗΤΡΗΣ
ΦΩΤΙΣΤΙΚΑ: ΦΩΤΟΝΙΟ & ΦΩΤΟΗΛΕΚΤΡΙΚΗ
ΧΡΟΝΟΔΙΑΓΡΑΜΜΑ:
ΑΡΧΙΤΕΚΤΟΝΙΚΗ ΜΕΛΕΤΗ & ΜΕΛΕΤΗ ΣΤΑΤΙΚΗΣ ΕΝΙΣΧΥΣΗΣ: 2018-2021 (με τις εγκρίσεις από την Αρχαιολογική υπηρεσία)
ΚΑΤΑΣΚΕΥΗ ΕΝ ΛΕΙΤΟΥΡΓΙΑ (χειμώνες)
- Εσωτερική ενίσχυση ανατολικά & δυτικά 2020-21,
- Νότια όψη 2021-22,
- Όψη πλατείας Πλαστήρα 2022-23
- Ισόγειο και διαμόρφωση εσωτερικών χώρων 2023-24