Το ξενοδοχείο Amira Serenity Suites είναι ξενοδοχείο 5 αστέρων και αποτελεί κοντινή επέκταση του βραβευμένου ξενοδοχείου "ΑMIRA LUXURY RESORT* SPA". Κατασκευάζεται σε οικόπεδο εντός οικισμού με ημιαστικό χαρακτήρα εμβαδού 5.394,51 τμ, που βρίσκεται στον Αδελιανό Κάμπο του Δήμου Ρεθύμνου στο 8ο Χιλιόμετρο ΠΕO - Ε90 (δημοτική οδό για το εντός του οικισμού τμήμα της). Ιδιοκτησία της εταιρείας ΑΡΙΩΝ ΑΞΤΕ.
Το οικόπεδο είναι μακρόστενο στενομέτωπο 160,00 Χ 32,00 μ με μικρή κατωφέρεια από Νότο προς Βορρά 5,80 μ.
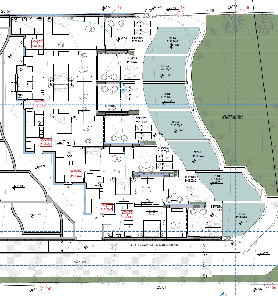
Σχεδιάστηκε ένα ξενοδοχείο 44 δωματίων και σουιτών με ατομικές πισίνες 15,00-19,00 τμ. Το κτίριο έχει μεγάλη διάσπαση όγκων και αναπτύσσεται σε πέντε κτίρια ισόγεια και διώροφα. Είναι εν μέρει υπόσκαφα με φυτεμένα δώματα. Καμπύλες τριγωνικές οπές στην οροφή των στεγάστρων αφήνουν το φυσικό φως να φωτίζει τις βορινές βεράντες και φυτά να πέφτουν από τα φυτεμένα δώματα. Πάνω από την τρίτη στάθμη σε φυτεμένο δώμα διαμορφώνεται ειδική ελαφριά κατασκευή από διάτρητα φύλλα αλουμινίου εμβαδού 110,00 τμ, πέργκολα για ασκήσεις γιόγκα και άλλα προγράμματα. Έχει θαυμάσια θέα στα φυτεμένα δώματα και στο βάθος τη θάλασσα.
Το πρώτο κτίριο είναι διώροφο διασπασμένο με μεγάλα κενά και στέγαστρο που εδράζεται σε λεπτές μεταλλικές κολώνες.
Στο κτίριο αυτό βρίσκεται η υποδοχή, εστιατόριο και μπαρ. Στο υπόγειο με αφανή είσοδο υπάρχει υπόγειο γκαράζ 60 θέσεων για τις ανάγκες του ξενοδοχείου.
Η κατασκευή έχει λιτό ροϊκό χαρακτήρα με απαλές θερμές αποχρώσεις.
Στόχος είναι να διαμορφωθεί μια πράσινη όαση στο ημιαστικό περιβάλλον του οικισμού "Αδελιανός Κάμπος".

ΣΥΝΤΕΛΕΣΤΕΣ ΤΟΥ ΕΡΓΟΥ
ΑΡΧΙΤΕΚΤΟΝΙΚΗ ΜΕΛΕΤΗ: "ΑΡΧΙΤΕΚΤΟΝΙΚΗ" ΑΝΔΡΕΑΔΑΚΗΣ ΜΠΑΚΑ & ΣΥΝΕΡΓΑΤΕΣ
ΜΕΛΕΤΗ & ΕΠΙΒΛΕΨΗ: ΑΝΔΡΕΑΔΑΚΗΣ ΕΥΑΓΓΕΛΟΣ
ΣΤΑΤΙΚΗ ΜΕΛΕΤΗ: ΒΑΣΙΛΑΚΗΣ ΓΙΩΡΓΟΣ
ΜΗΧΑΝΟΛΟΓΙΚΕΣ ΜΕΛΕΤΕΣ: ΚΟΥΚΛΑΚΗΣ ΛΕΥΤΕΡΗΣ